Boundary Studios

Two level Administration Building offices

SELECT A VIRTUAL TOUR

FIRST FLOOR DOWNLOADS

SECOND FLOOR DOWNLOADS

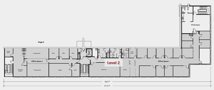
Stage 5/6 Offices - SPECS

NOTES

  • Currently the offices are available for productions, visual effects departments, or post–production space as the office pod layouts can accommodate these types of uses.
  • Situated adjacent to Stage 5 and Stage 6.
  • The first floor is composed of 6,560 sq. ft. of support space.
  • The second floor contains 8,500 sq. ft. of office space, including a boardroom.
  • Additionally, there is also first aid, laundry, kitchen, washrooms, and elevator access.
  • Also referred to as the Administration Building offices.

 BRIDGE STUDIOS ARE PROUD PARTNERS OF