Boundary Studios

12,500 sq. ft. soundproof studio.

SELECT A VIRTUAL TOUR

DOWNLOADS

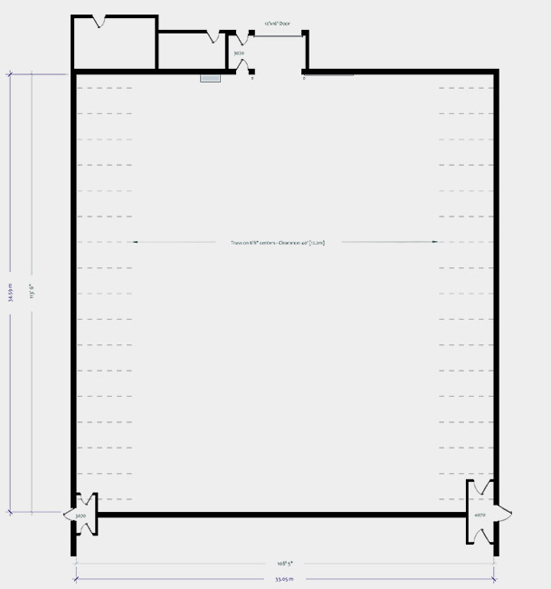
Stage 5 - SPECS

AREA (SF)

12,500

DIMENSIONS

115' x 110'

HEIGHT

40'

NOTES

  • Soundproof
  • Elephant Doors
  • Air conditioned
  • 3200amps 120/208v
  • Grid = 4,600 lbs. per any one point on truss
  • Interior is checkered flat black acoustical panels
  • 12,000 cfm exhaust fans

 BRIDGE STUDIOS ARE PROUD PARTNERS OF