Boundary Studios

18,000 sq. ft. soundproof studio.

SELECT A VIRTUAL TOUR

DOWNLOADS

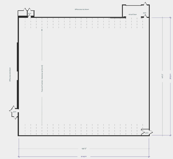
Stage 7 - SPECS

AREA (SF)

18,000

DIMENSIONS

140' x 127'

HEIGHT

40'

NOTES

  • Soundproof
  • 16′ loading doors
  • 1600amps 120/208v w/additional 1600amps available
  • GRID = 4,500 pounds per any one point on truss
  • HVAC to sound stage has 40 ton capacity
  • 35,000cfm exhaust fans
  • Automatic demand controlled ventilation provided by C02 sensors for energy savings

 BRIDGE STUDIOS ARE PROUD PARTNERS OF