Boundary Studios

8,500 sq. ft. soundproof and air conditioned studio.

DOWNLOADS

Stages 1-3 Combined

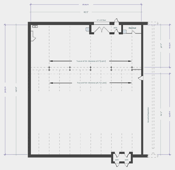
Stage 1 - SPECS

AREA (SF)

8,500

DIMENSIONS

85' x 100'

HEIGHT

40'

NOTES

  • Soundproof
  • Elephant Doors
  • 1800amps 120/208v
  • Grid = 7,500 total lbs. per truss
  • Reverb. time = 1 second at 500hz
  • Air Conditioned

 BRIDGE STUDIOS ARE PROUD PARTNERS OF